
Einfamilienhaus St.Angelo
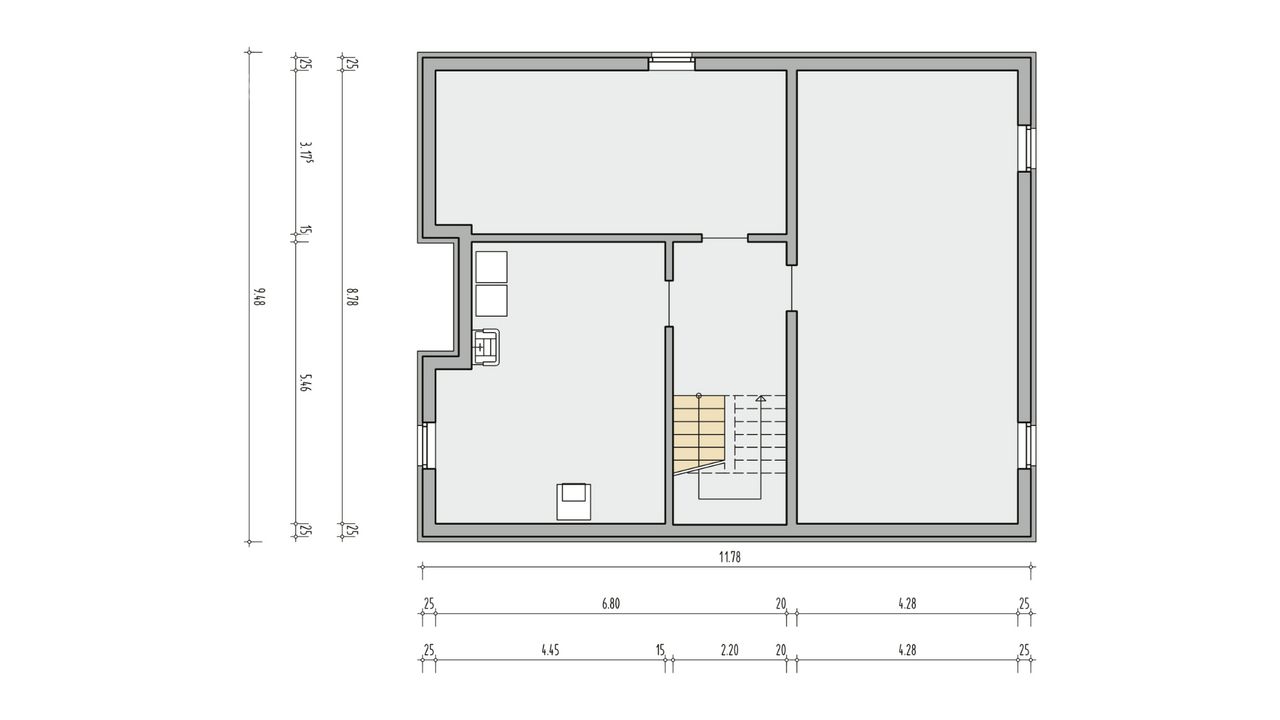
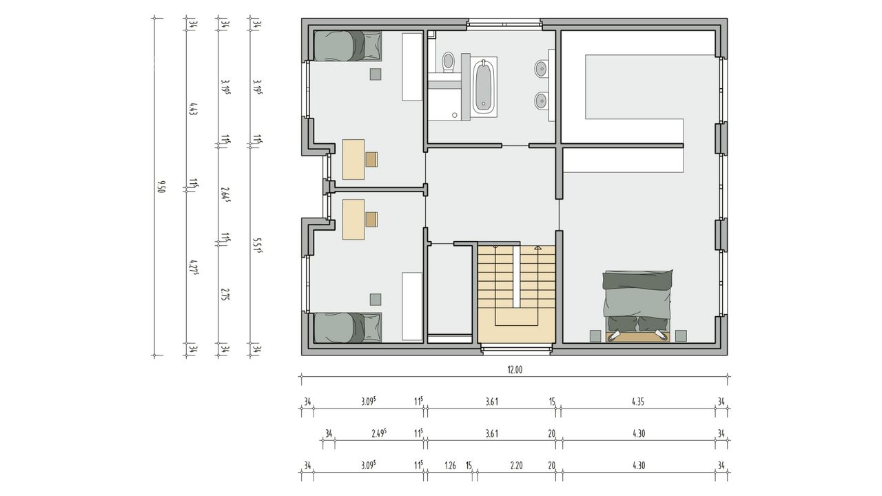
Unser Haus St.Angelo ist ein modernes Kubushaus in seiner reinsten Form. Der Würfel als Ausgangsform für ein Haus bietet die effizienteste Form des Bauens, hierbei wird das Verhältnis zwischen Aussenhülle und Raumvolumen am effektivsten genutzt. So entsteht eine gesamte Wohnfläche von über 190m². Der einladend, offen gestaltete Wohn-und Eingangsbereich erstreckt sich dabei nahezu über die gesamte Grundfläche des Hauses. Die großen Fensterflächen durchluten die Räumlichkeiten mit Tageslicht und sorgen für eine helle, freundliche Wohnatmosphäre.
ERROR: Content Element with uid "2745" and type "dce_dceuid2" has no rendering definition!









