
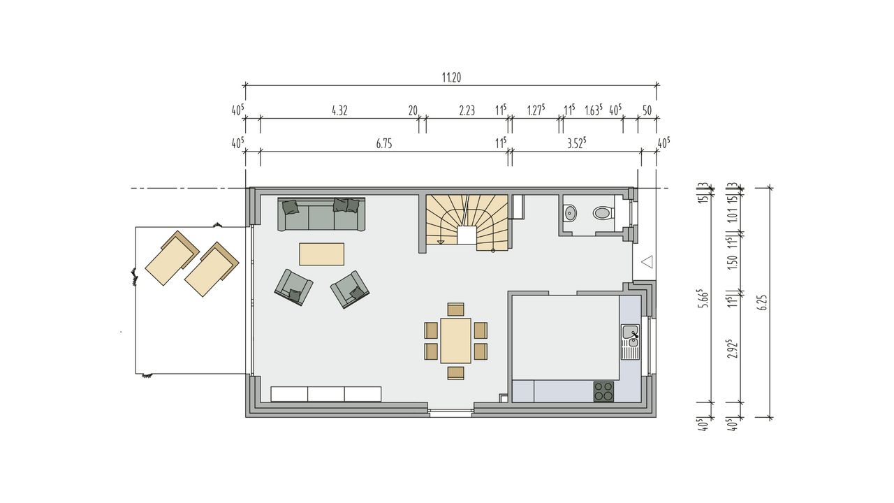
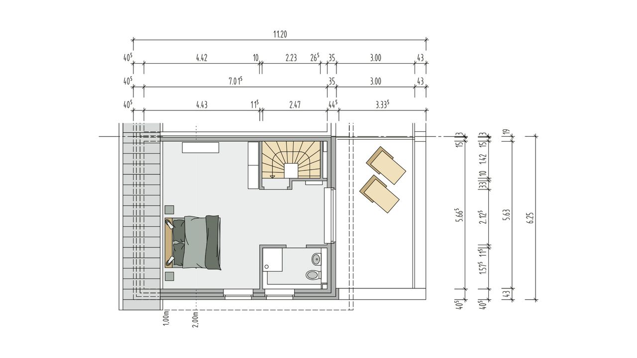
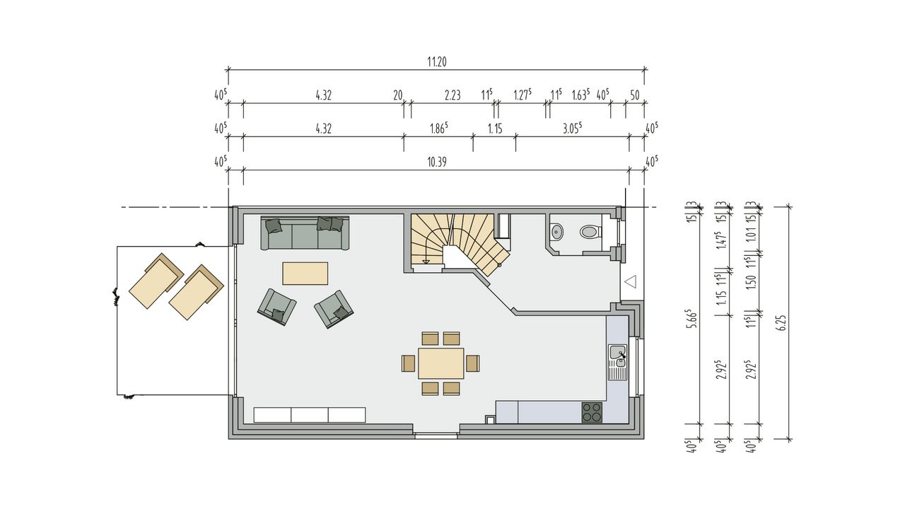
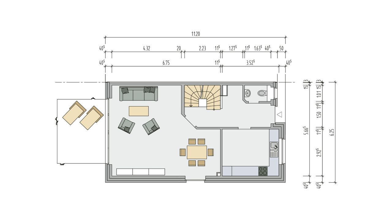
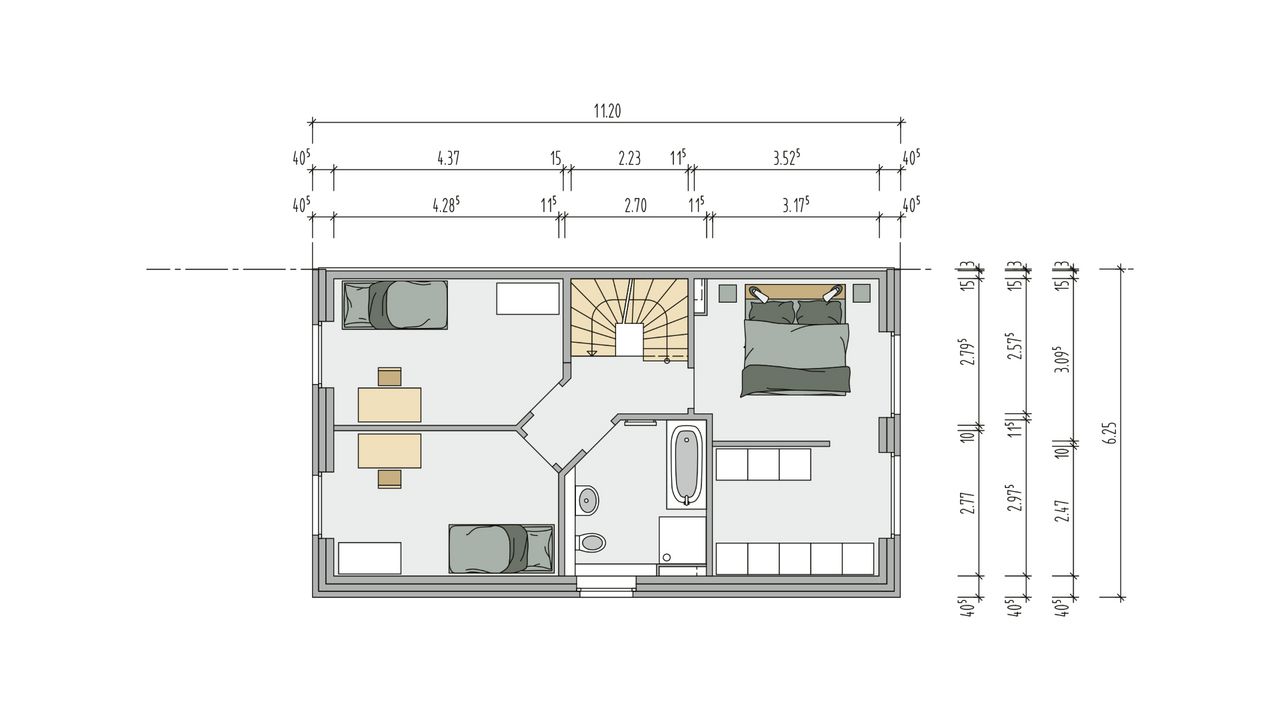
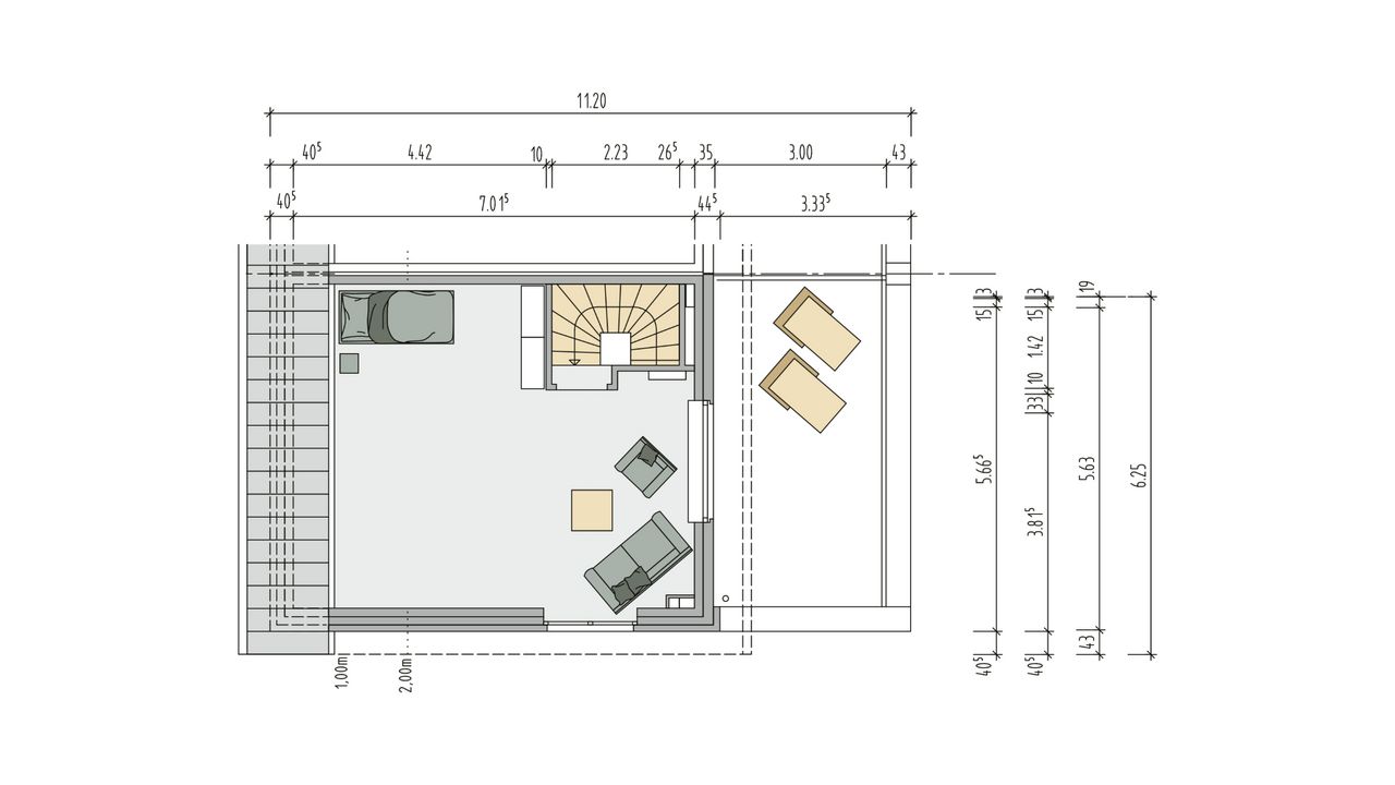
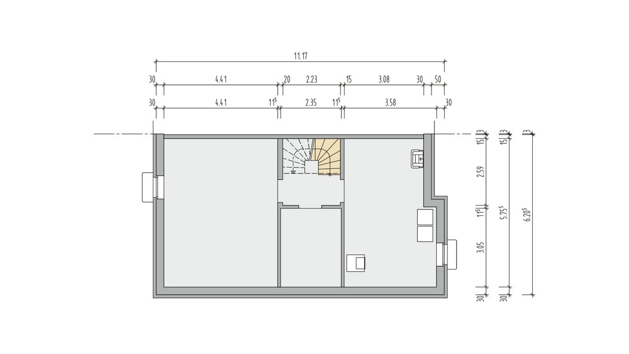
Doppelhaus Venedig Dachterrasse
Hierbei haben wir unseren Klassiker durch ein weiteres Highlight ergänzt. Zu der großzügigen Wohnfläche mit vielfältigen Gestaltungsmöglichkeiten der Raumaufteilung gesellt sich nun eine luftige Dachterrasse. Genießen Sie nun alle Sonnenstunden des Tages, ob im eigenen Garten oder zum Abend auf der großflächigen Dachterrasse.
ERROR: Content Element with uid "2727" and type "dce_dceuid2" has no rendering definition!














