
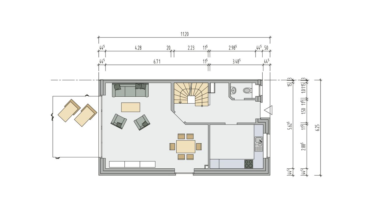
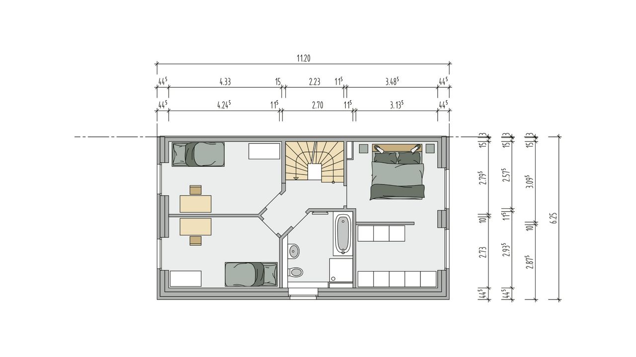
Doppelhaus Venedig
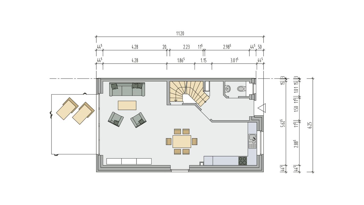
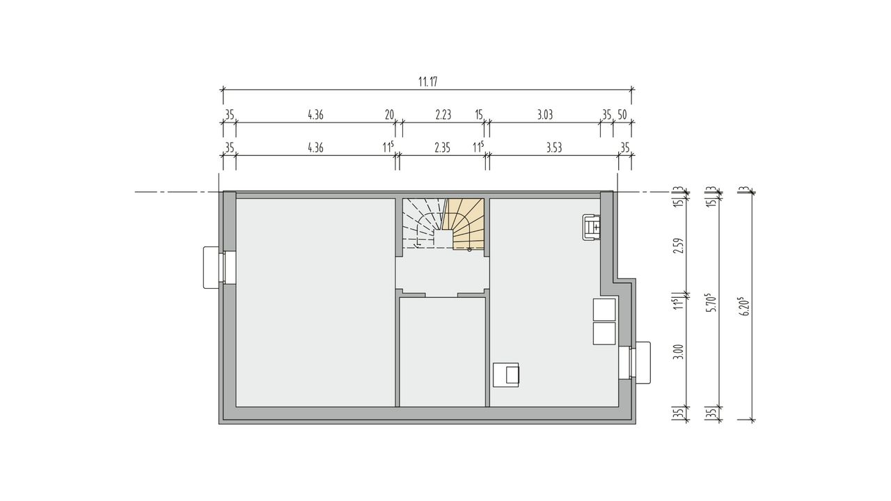
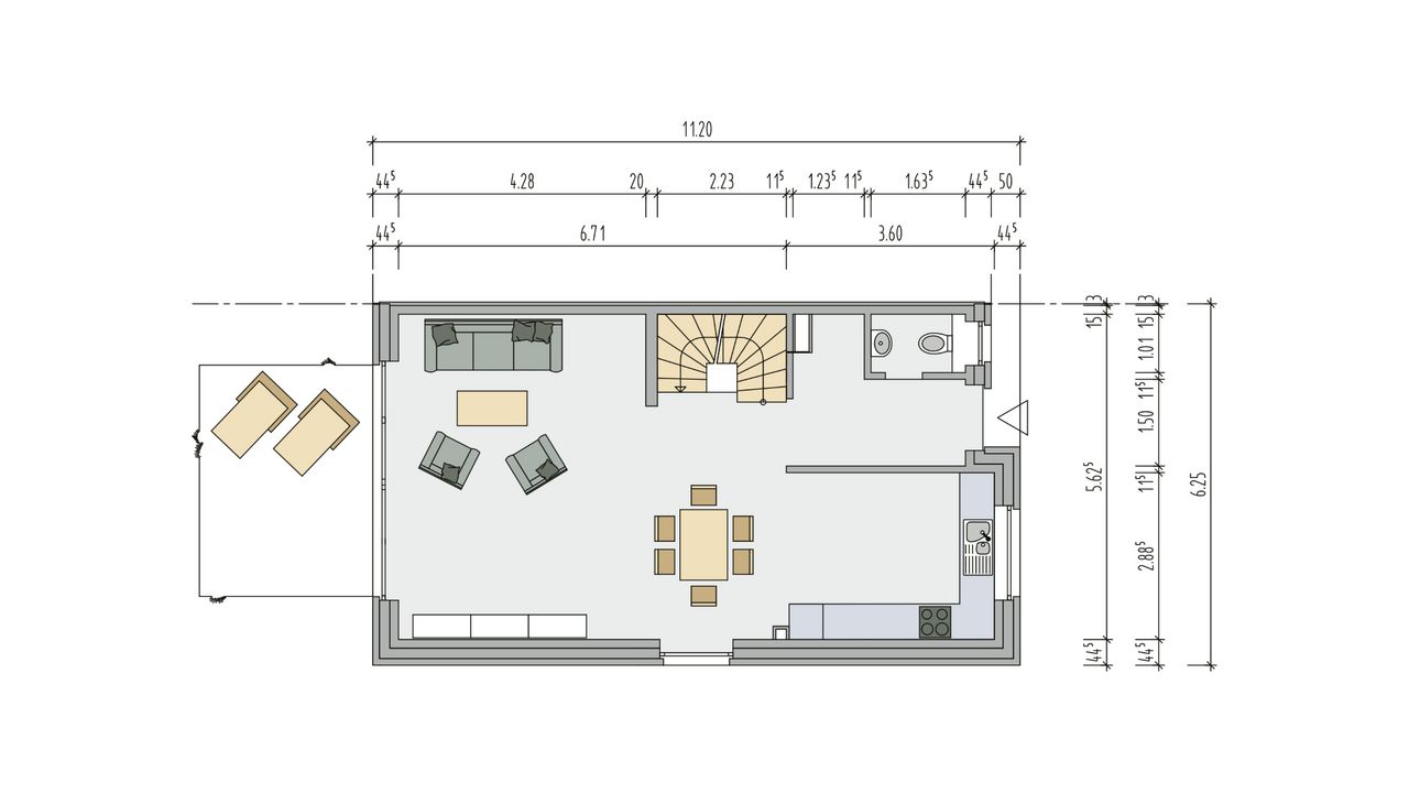
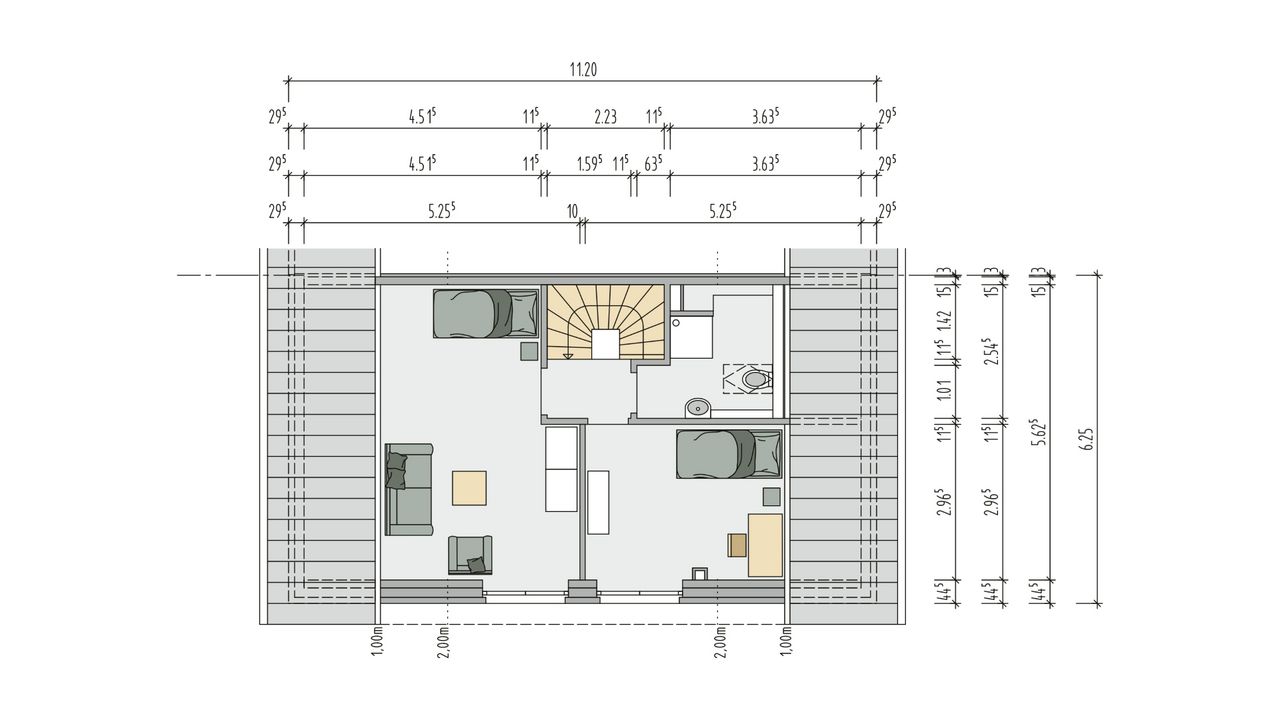
Das Haus Venedig ist unser klassisches Doppelhaus mit Klinkerfassade und Satteldach. Mit seinen knapp 145 m² Wohnfläche bietet es ausreichend Platz für eine vierköpfige Familie. Das modern-offen gestaltete Erdgeschoss schafft ein großzügiges Wohngefühl, im clever geschnittenem Obergeschoss befinden sich die Schlafräume der ganzen Familie. Zudem bietet das Dachgeschoss noch weiteren, gestaltbaren Wohnraum. Ansprechend durchdachte Grundrissalternativen lassen keine Wünsche offen.
ERROR: Content Element with uid "2669" and type "dce_dceuid2" has no rendering definition!













